Some of the data collected by this provider is for the purposes of personalization and measuring advertising effectiveness.
Some of the data collected by this provider is for the purposes of personalization and measuring advertising effectiveness.
Some of the data collected by this provider is for the purposes of personalization and measuring advertising effectiveness.
San Miguel De Salinas, Alicante Province, San Miguel de Salinas
Apartment for sale
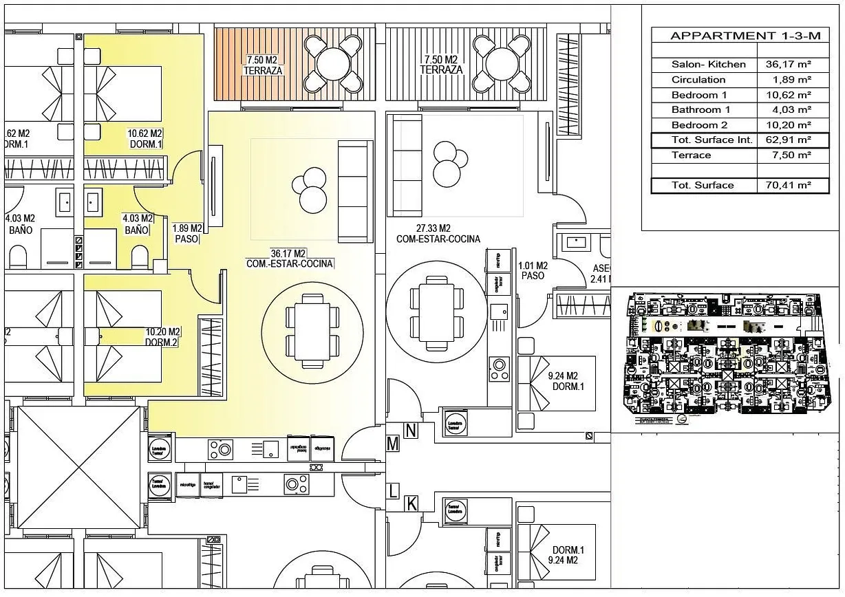
Modern New Build Apartments in the Center of San Miguel de Salinas Contemporary Living in a Healthy Mediterranean Environment Located in the charming town of San Miguel de Salinas, just 10 km from the Mediterranean Sea, this new residential development offers the perfect balance between modern comfort and natural surroundings. The area is well known for its nearby salt lakes and exceptional microclimate, considered one of the healthiest in Europe. This peaceful yet vibrant town allows residents to enjoy the authentic Mediterranean lifestyle while being within walking distance of shops, restaurants, supermarkets and all essential services. San Miguel de Salinas sits slightly inland on the Costa Blanca South, offering open views, fresh air and easy access to beaches, golf courses and shopping areas. Stylish Apartments Designed for Comfort and Efficiency The project consists of two modern buildings separated by a landscaped communal garden area. A total of 56 contemporary apartments are available with 1, 2 or 3 bedrooms, each featuring a private terrace. Every home has been designed with comfort, aesthetics and energy efficiency in mind, using high quality materials and modern insulation systems. Each apartment includes: Armored entrance door Bathrooms with vanity units Pre installation of ducted air conditioning Energy certificate rating A The layout and orientation of the homes ensure natural light throughout the day, creating bright and welcoming interiors ideal for both permanent living and holiday use. Exceptional Communal Areas for Relaxation and Social Life The ground floor communal space is designed as the social heart of the development, surrounded by landscaped gardens, seating areas, bicycle parking and a children’s playground. It is an ideal meeting point for residents of all ages. On the rooftop, an impressive 350 m2 leisure area awaits. This space includes a 70 m2 swimming pool with a separate children’s splash area, pergolas, sun loungers and shaded areas, allowing residents to relax while enjoying panoramic views. The rooftop is easily accessible by one of the three lifts and includes sanitary facilities for added comfort. Excellent Location Close to Key Points of Interest Mediterranean beaches 10 km Zenia Boulevard Shopping Center 9 km Villamartin Golf 6 km Las Colinas Golf 8 km Torrevieja Marina 12 km Alicante Airport 60 km Murcia Corvera Airport 55 km A Smart Investment in Costa Blanca South This residential complex combines modern architecture, quality finishes and a prime central location, making it an excellent choice for living, holiday enjoyment or rental investment. Contact us today for more information or to arrange a visit to these modern apartments in San Miguel de Salinas.
If you’re looking to buy, sell, let, or simply have questions, our team is here to help. Get in touch with our local experts in Manchester or Hale





